연산12구역 재개발사업: 정비계획 결정 및 정비구역 지정 공고 안내

연산12구역 재개발사업: 정비계획 결정 및 정비구역 지정 공고 안내

연산12구역 재개발사업: 정비계획 결정 및 정비구역 지정 공고 안내



연산12구역 재개발사업 정비계획 결정 및 정비구역 지정(안) 공람․공고

- 연제구 연산동 657-1번지 일원

image
image

부산 연제구 연산동 657-1번지 일원에 위치한 연산12구역이 재개발사업에 대한 정비계획이 결정되고 정비구역 지정(안) 공람 공고를 발표했다.

이번 공람은 주민들의 의견을 수렴하기 위한 중요한 절차로, 공람 기간은 2024년 11월 6일부터 12월 6일까지로 설정되었다. 공람은 연산12구역 재개발추진위원회 사무실과 연제구청 건축과에서 진행된다.

주민들의 적극적인 참여가 필요하며, 이번 기회를 통해 지역 발전에 기여할 수 있기를 바란다.

image

연산12구역은 연산동 재개발 지역 가운데 뛰어난 입지와 넓은 면적으로 많은 주목을 받고 있는 구역이다. 이번 공람을 통해 주민들의 의견을 수렴한 후, 최종 고시는 이루어져 구역계가 확정될 예정이다.

공람 도서와 관련 자료는 지정된 공람 장소에 비치되어 있으며, 주민들은 서면으로 의견서를 제출할 수 있다. 이러한 과정을 통해 주민들의 목소리가 반영될 것으로 기대된다.

image

부산 연산동 일대 재개발, 재건축 개발 근황은 아래 포스팅 참고.

image
부산 연제구 연산동 근황 아파트 투자 재개발 재건축 지주택 극초기 주환개/연양라인,물만골,배산역,토곡/연산더샵,파크시티,망미주공/연산7,8,9,10,11,12,13,14,15 구역




부산광역시 연제구 공고 제2024-1304호


연산12구역 재개발사업 정비계획 결정 및 정비구역 지정(안) 공람·공고

부산광역시 연제구 연산동 657-1번지 일원 연산12구역 재개발사업 정비계획 결정 및 정비구역 지정(안)에 대하여 「도시 및 주거환경정비법」 제15조 및 같은 법 시행령 제13조 규정에 따라 아래와 같이 주민의견을 청취하고자 공람하오니, 의견이 있을 경우 공람기간 내 공람장소로 의견서를 제출하여 주시기 바랍니다.

2024년 11월 6일
부산광역시 연제구청장

1. 공람기간: 2024. 11. 6. ∼ 2024. 12. 6.

2. 공람장소: 연산12구역 재개발추진위원회 사무실
[연제구 월드컵대로 22-1, 2층(연산동), ☎ 051) 868-8411]
연제구청 건축과
[연제구 연제로 2(연산동), ☎ 051) 665-5055]

3. 공람내용
가. 정비구역 지정조서

지정구분사업의 구분구역의 명칭위치면적(㎡)비고
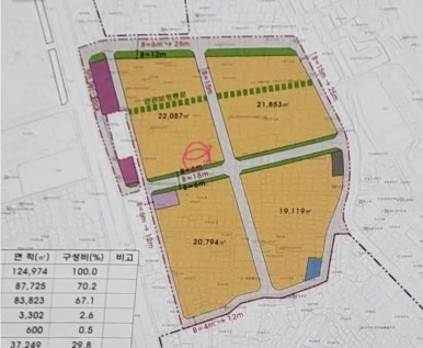
신규재개발사업연산12 재개발정비구역연제구 연산동 657-1번지 일원125,753

나. 정비계획(안): 공람도서 참조

4. 공람도서: 공람장소에 비치

5. 의견제출 장소 및 방법: 공람기간 내 연제구 건축과에 서면으로 제출

image


구분
공고
기관구분
구군
기관
연제구
고시·공고 번호
제2024-1304호
제목
연산12구역 재개발사업 정비계획 결정 및 정비구역 지정(안) 공람․공고
일자
2024-11-06

#연산12구역재개발, #부산연산12구역, #연산동재개발, #부산재개발사업, #부산주거환경개선, #연산동아파트, #부산주택정비, #연산동신축아파트, #연산동부동산, #부산부동산, #연산동재개발구역, #연산동입지, #부산연제구, #부산연제구재개발, #부산재개발뉴스, #연산12정비구역, #연산12구역주민의견, #부산재개발공람, #부산연산12지정, #연산12구역공람, #부산재개발계획, #연제구청공고, #연산동부동산개발, #연산동재개발계획, #연산12구역고시, #부산연산동, #부산주거정비, #연산동신규주거, #부산재개발공고, #부산주택시장

다음 이전